太阳成tyc光电现为河北省信息产业与信息化协会和江苏省照明商会会员企业,河北省智慧路灯团体标准《多功能智慧灯杆系统技术规范》起草单位。
太阳成tyc光电拥有多年的LED照明及亮化产品生产及施工经验 以顾客为上帝,视质量如生命
全国咨询热线:13473293771
联系太阳成tyc

【 微信扫码咨询 】

13473293771

您的位置: 新闻中心 > 科技前沿 >

高杆灯常见问题有哪些(一)高杆灯基础应注意事项

分类:科技前沿 浏览量: 时间:2022-04-28 11:08:49

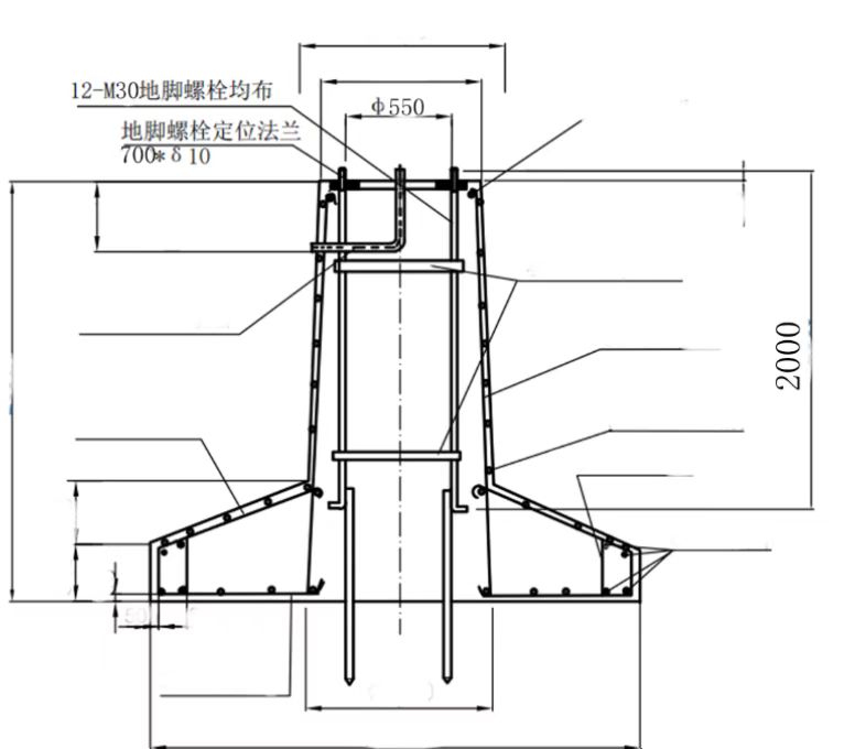
高杆灯安装,高杆灯基础

高杆灯高度一般指十五米以上,四十米以下(个别特殊要求也有更高的),光源从几个到几十个的大型照明灯具,因此要求高杆灯的基础必须进行科学设计,必要的时候应进行专项地质勘探,以保证高杆灯安全正常的使用。重点应注意以下的几个问题

1、高杆灯的安全防护问题,这里主要是指防雷及漏电保护的问题,高杆灯制作之前必须要了解高杆灯安装位置的地质条件,合理设计防雷击和漏电接地设施,保证雷击或者漏电时及时导引电流入地,确保人民群众的安全。

2、高杆灯预埋件问题,高杆灯的预埋件在高杆灯安装以后是看不见的,他对于高杆灯的抗风及直立有着不可替代的支撑作用,必须根据灯杆高度、最大风力、及地质条件进行科学设计并保证一定的冗余度(安全系数)。


三十米高杆灯基础图

二十米高杆灯基础图

3、高杆灯基础施工问题。高杆灯 因为施工质量引起的故障主要表现:一,混凝土标号不够,没有按标准进行施工;二是过道管的制作和安装不符合要求,两端没有按标准做成嗽叭口;三是铺装电缆时在地上拖着走;四是基础的预埋管不按标准要求施工,主要是预埋管过细,再加上一定的弯度,穿电缆时相当困难,在基础底部出现“死弯”情况;五是线鼻子压接和绝缘包缠厚度不够,经过长时间运行就会相间短路。